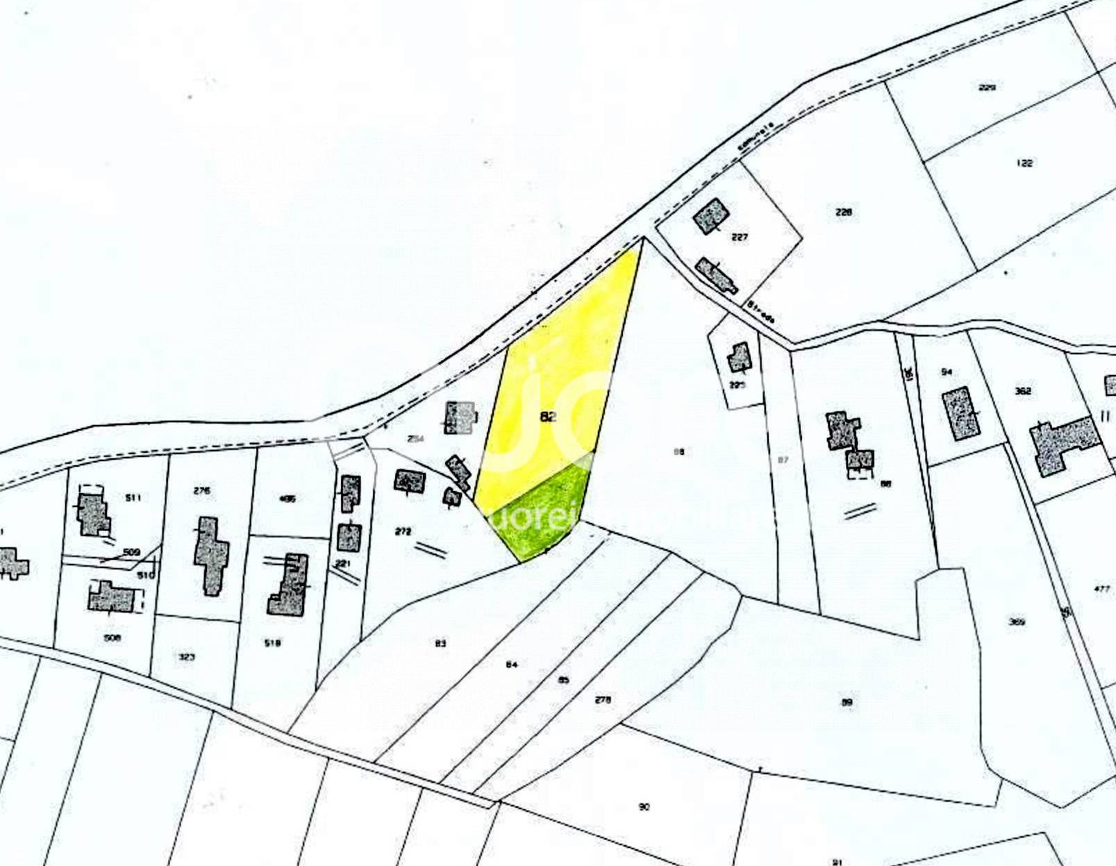
TERRENO EDIFICABILE DI QUASI 4000 MQ ARA PICCOLA DI TRICESIMO
TERRENO EDIFICABILE ARA PICCOLA DI TRICESIMO, OTTIMO PER VILLA SINGOLA O 2 VILLETTE
3850 MQ TOTALI, EDIFICABILI 3000 mq, agricolo 850 mq, 1500 mc circa, indice 0,50%,
massimo 2 unità , concessione diretta, utenze sulla strada principale, eventualmente frazionabile in 2 lotti, altezza massima 7,5 metri, distanze: 10 metri dalla strada, 5 metri per lato
Comune di Tricesimo (UD) via Ippolito Nievo in località Ara Piccola
Destinazione d’uso terreno in parte edificabile ed in parte agricolo.
FRAZIONABILE
no permute
prezzo + tasse come per legge
I dati, le immagini, le planimetrie contenute nel presente annuncio pubblicitario non costituiscono né potranno costituire elementi di riferimento ai fini di eventuali futuri contratti e/o per la determinazione del loro contenuto.
Agenzia Borgobello gruppo Quore Udine

