Tricesimo terreno edificabile con ampio lotto agricolo contiguo.
 Tricesimo (Udine) |
107.000 €
vendita | annuncio N. AB1001
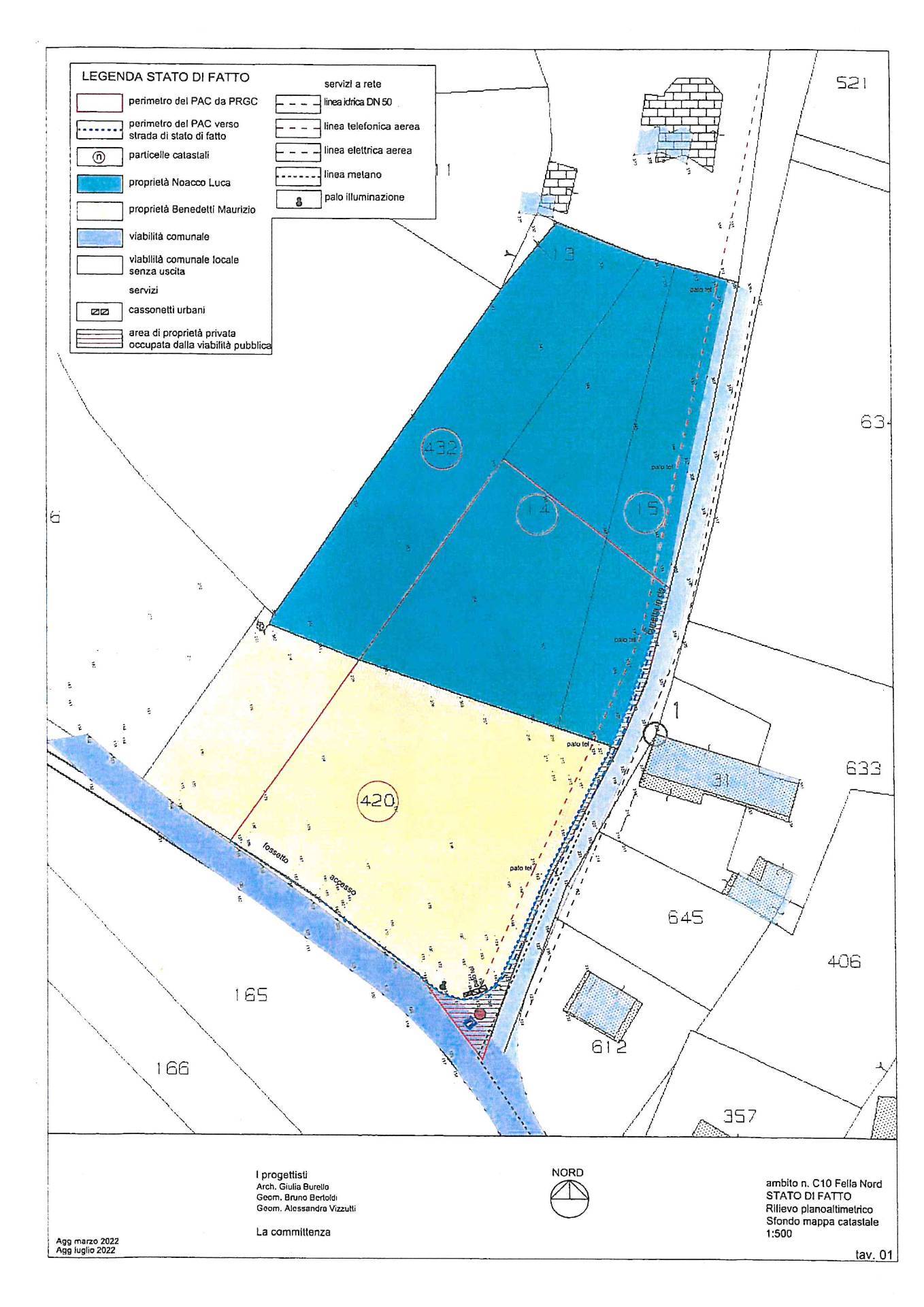
Tricesimo Ara Grande
Lotto di terreno in parte edificabile urbanizzato, in parte in zona agricola.
Indici urbanistici:
Destinazione d’uso residenziale
altezza fabbricati m. 7,50
densitĂ di u.i. resid. 1/400 mq
distanza dai confini m.5,00
distanza da strada m. 5,00
indice fabbricabilitĂ territoriale mc/mq 1
rapporto di copertura mq/mq 0.25
Superfici dei lotti:
Superficie netta edificabile mq 1205,00
Superficie adibita a parcheggi mq 120,00
Superficie agricola mq 2545,00
Indirizzo: via Fella nord, Tricesimo,
CAP: 33019
Palestre
Centri Benessere
Campi da Calcio
Complessi Sportivi
Campi da Tennis
Piste Ciclabili
Parchi Giochi
Stazione Ferroviaria
Trasporti Pubblici
Asilo
Scuole Elementari
Scuole Medie
Bar
Uffici postali
Centri commerciali
Uffici comunali
ABIT’UDINE
gruppo quore
Via XI Febbraio, 42, Tricesimo, Udine, Italia
P.IVA 02934350303

