UDINE NORD, IN VENDITA, OCCUPATO DA INQUILINO – SI ACQUISTA A SCOPO INVESTIMENTO (700 EURO MENSILI DI AFFITTO)
 Udine (Udine) |
158.000 €
vendita | annuncio N. BO765
100.00 mq
5 locali
2 bagni 
DESCRIZIONE
SI VENDE LOCATO
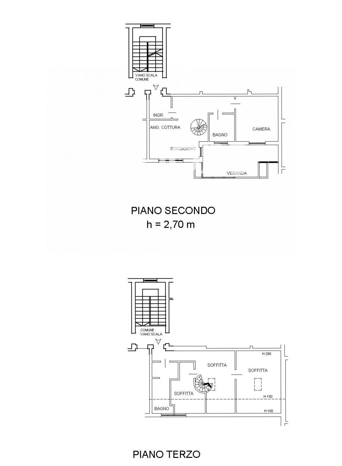
Udine Zona Ospedale, in tranquilla palazzina, proponiamo la vendita di un appartamento sviluppato su due livelli, posizionato al secondo piano (senza ascensore), arredato, termoautonomo, composto da: ingresso zona giorno con cucina nuova (lavastoviglie), camera, bagno finestrato con vasca e terrazzo verandato abitabile (può fungere anche da ripostiglio); scala a chiocciola che conduce al piano mansardato composto da 3 vani + bagno. Completano il tutto cantina e garage.
Pavimento in legno, aria condizionata, infissi nuovi, Cucina nuova, elettrodomestici nuovi. Doppio ingresso, Ospedale civile nelle vicinanze, riscaldamento autonomo, clima, infissi nuovi al piano giorno.
OCCUPATO DA INQUILINO – SI ACQUISTA A SCOPO INVESTIMENTO (700 EURO MENSILI DI AFFITTO) – SCADENZA ATTUALE DEL CONTRATTO FEBBRAIO 2027
I dati, le immagini, le planimetrie contenute nel presente annuncio pubblicitario non costituiscono né potranno costituire elementi di riferimento ai fini di eventuali futuri contratti e/o per la determinazione del loro contenuto. Borgobello gruppo Quore Udine.

DETTAGLI
Classe energetica: E
EP glnr: 81.20 kwh/㎡
Indirizzo: VIA FRIULI,
Camere: 2
Bagni: 2
Locali: 5
Stato conservazione: Buono
Piani totali: 1
Infissi: legno
Appartamenti Totali: 10
Anno di costruzione: 1985
Stato attuale: Libero al rogito
Spese condominio: € 80
Box: Singolo

PLANIMETRIE

SCOPRILO SULLA MAPPA

ALTRI DATI
Terrazza
Antenna Tv
: Condominiale
Veranda
: 10 ㎡
Tv SAT
: Condominiale
Ripostiglio
Copertura ADSL
Cantina
Copertura Fastweb
Aria Condizionata
Parquet
Impianto Telefonico
Impianto Elettrico
: A norma
Doccia
Infissi in legno
Soffitta

NELLE VICINANZE
Palestre
Centri Benessere
Campi da Calcio
Complessi Sportivi
Campi da Tennis
Piste Ciclabili
Parchi Giochi
Stazione Ferroviaria
Trasporti Pubblici
Asilo
Scuole Elementari
Scuole Medie
Scuole Superiori
Bar
Uffici postali
Centri commerciali

CONTATTACI
gruppo quore

SCRIVICI UNA MAIL O CHIAMACI:
Via delle Erbe n. 4 -, Udine, Udine, Italia
P.IVA 01930440308

ANNUNCI SIMILI
in vendita
175.000 €
annuncio N. BO838
 Via Castellana 2 33100 Udine Udine Italia
53.00 mq
3 locali
1 bagni
in vendita
175.000 €
annuncio N. OB14031
 Via Aquileia 37 33100 Udine Udine Italia
67.00 mq
3 locali
1 bagni
VENDUTO
TRATTATIVA RISERVATA
annuncio N. BO817
 piazzale CHIAVRIS 60 33100 Udine Udine Italia
125.00 mq
5 locali
1 bagni