UDINE, POSIZIONE INVIDIABILE, FABBRICATO COMMERCIALE E RESIDENZIALE A RENDITA DEL 10%, CON ANNESSO TERRENO EDIFICABILE
Udine Intero fabbricato cielo-terra a reddito | Rendita lorda annua del 11% ca.
posizione strategica, non lontano da Via Aquileia, direttamente affacciato su uno dei principali viali d’accesso alla città e inserito in zona servitissima, proponiamo interessante opportunità d’investimento:
intero fabbricato cielo-terra, completamente locato, con ottima redditività da subito.
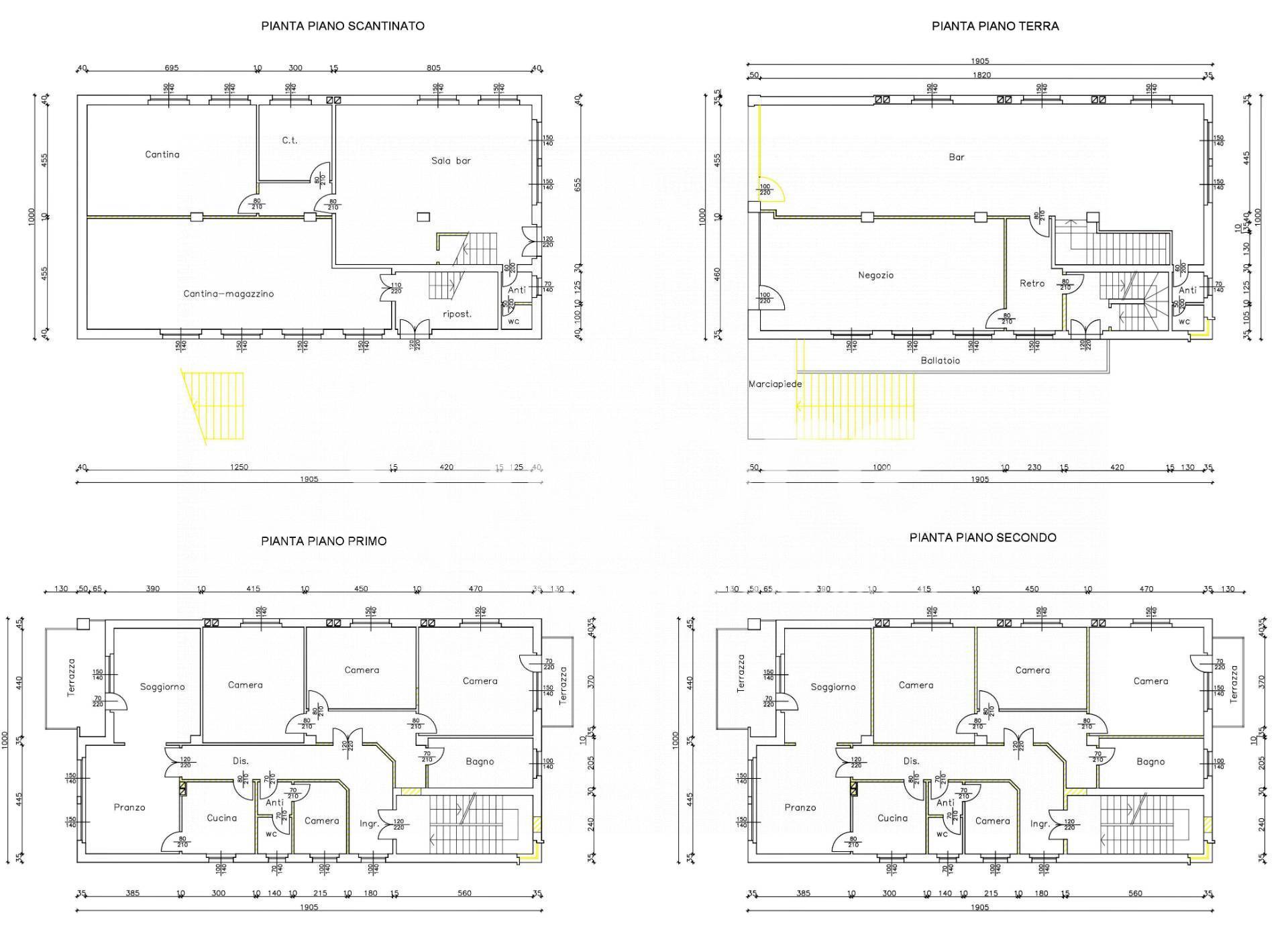
Composizione:
2 locali commerciali al piano terra, locati a storica attività presente da anni nel contesto
3 appartamenti residenziali, regolarmente locati
Scantinato di 190 mq
Lotto di terreno di 920 mq con potenziale edificatorio
Dati principali:
Rendita lorda annua: ca. 11%
Anno di costruzione: anni ’60 ma i negozi sono in ottime condizioni
Superficie commerciale complessiva: oltre 750 mq
Locali commerciali: 190 mq
Abitazioni: 380 mq
Scantinato: 190 mq
Potenzialità edificatoria:
Il fabbricato insiste su lotto edificabile in zona B2:
Indice di edificabilità: 2 mc/mq
Altezza massima: 13,5 m
Copertura massima: 35% Possibilità di ampliamento o riqualificazione in ottica di valorizzazione futura.
Maggiori dettagli e documentazione disponibile su appuntamento riservato.
I dati, le immagini, le planimetrie contenute nel presente annuncio pubblicitario non costituiscono né potranno costituire elementi di riferimento ai fini di eventuali futuri contratti e/o per la determinazione del loro contenuto.

